Last updated: 29-10-2025
| Room no. | Floor | Area (m2) | Description | Price* | Status |
|---|---|---|---|---|---|
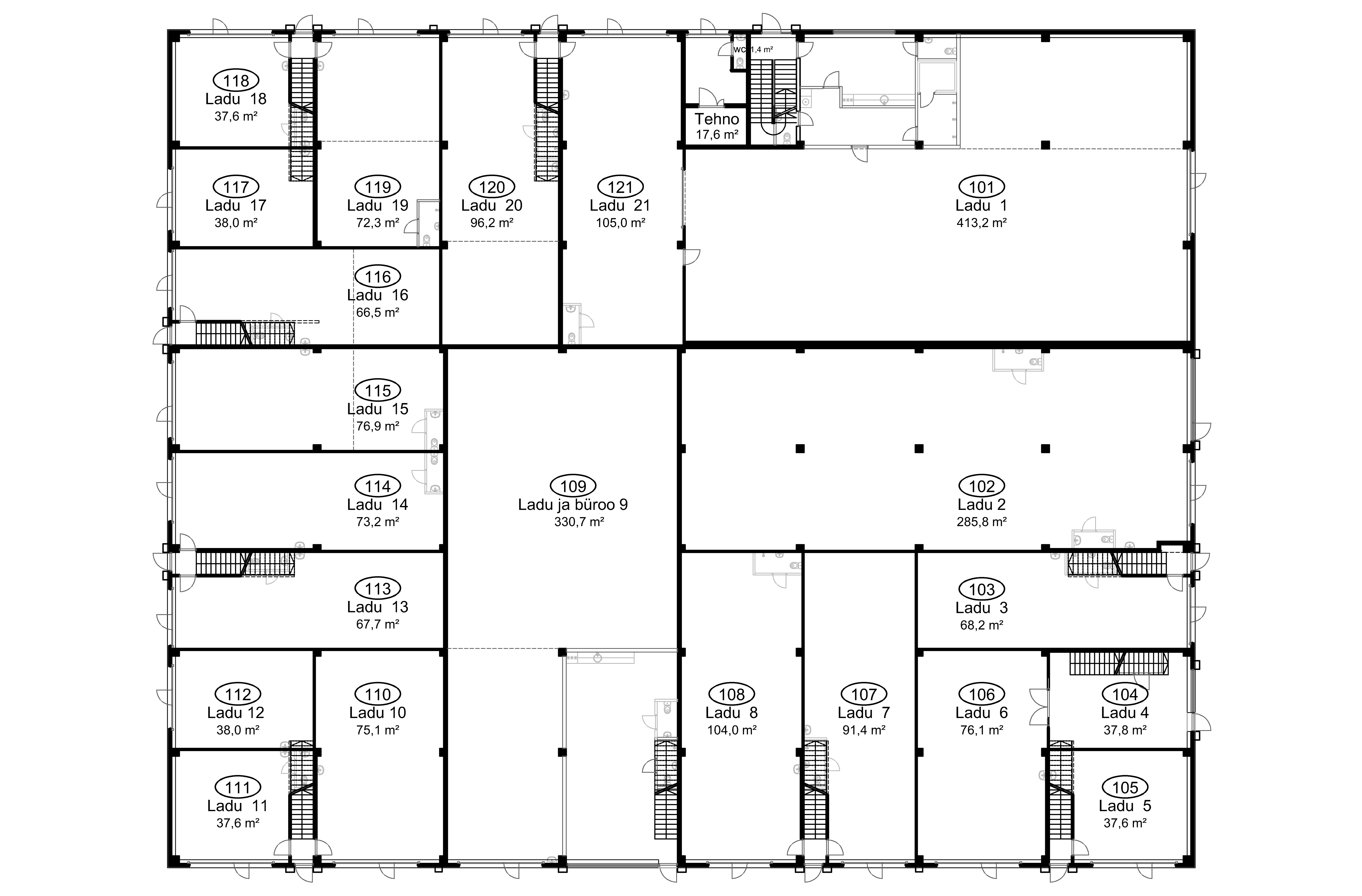
| 101 | 1 | 413.2 | warehouse/workshop + stairs (H=4.4m/7.7m) | Reserved | |
| 102 | 1 | 285.8 | hall/warehouse/workshop (H=3.4m) | €428,000 | Available |
| 103 | 1 | 68.2 | hall/warehouse/workshop (H=3.4m) | €117,000 | Available |
| 104 | 1 | 37.8 | warehouse/workshop (H=3.4m) | Reserved | |
| 105 | 1 | 37.6 | warehouse/workshop (H=3.4m) | Reserved | |
| 106 | 1 | 76.1 | warehouse/workshop (H=3.4m) | Reserved | |
| 107 | 1 | 91.4 | warehouse/workshop (H=3.4m) | €157,000 | Available |
| 108 | 1 | 104.0 | warehouse/workshop (H=3.4m) | Reserved | |
| 109 | 1 | 330.7 | office + warehouse/workshop (H=3.4m/6.4m) | €485,500 | Available |
| 110 | 1 | 75.1 | warehouse/workshop (H=3.4m) | €132,000 | Available |
| 111 | 1 | 37.6 | warehouse/workshop (H=3.4m) | Reserved | |
| 112 | 1 | 38.0 | warehouse/workshop (H=3.4m) | €73,000 | Available |
| 113 | 1 | 67.7 | warehouse/workshop (H=3.4m) | €121,000 | Available |
| 114 | 1 | 73.2 | warehouse/workshop (H=3.4m) | €129,000 | Available |
| 115 | 1 | 76.9 | warehouse/workshop (H=4.4m) | Reserved | |
| 116 | 1 | 66.5 | warehouse/workshop (H=4.4m) | Reserved | |
| 117 | 1 | 38.0 | warehouse/workshop (H=4.4m) | Reserved | |
| 118 | 1 | 37.6 | warehouse/workshop (H=4.4m) | Reserved | |
| 119 | 1 | 72.3 | warehouse/workshop (H=4.4m) | Reserved | |
| 120 | 1 | 96.2 | warehouse/workshop (H=4.4m) | Reserved | |
| 121 | 1 | 105.0 | warehouse/workshop (H=4.4m) | Reserved | |
| * VAT will be added to the price | |||||
Last updated: 29-10-2025
| Room no. | Floor | Area (m2) | Description | Price* | Status |
|---|---|---|---|---|---|
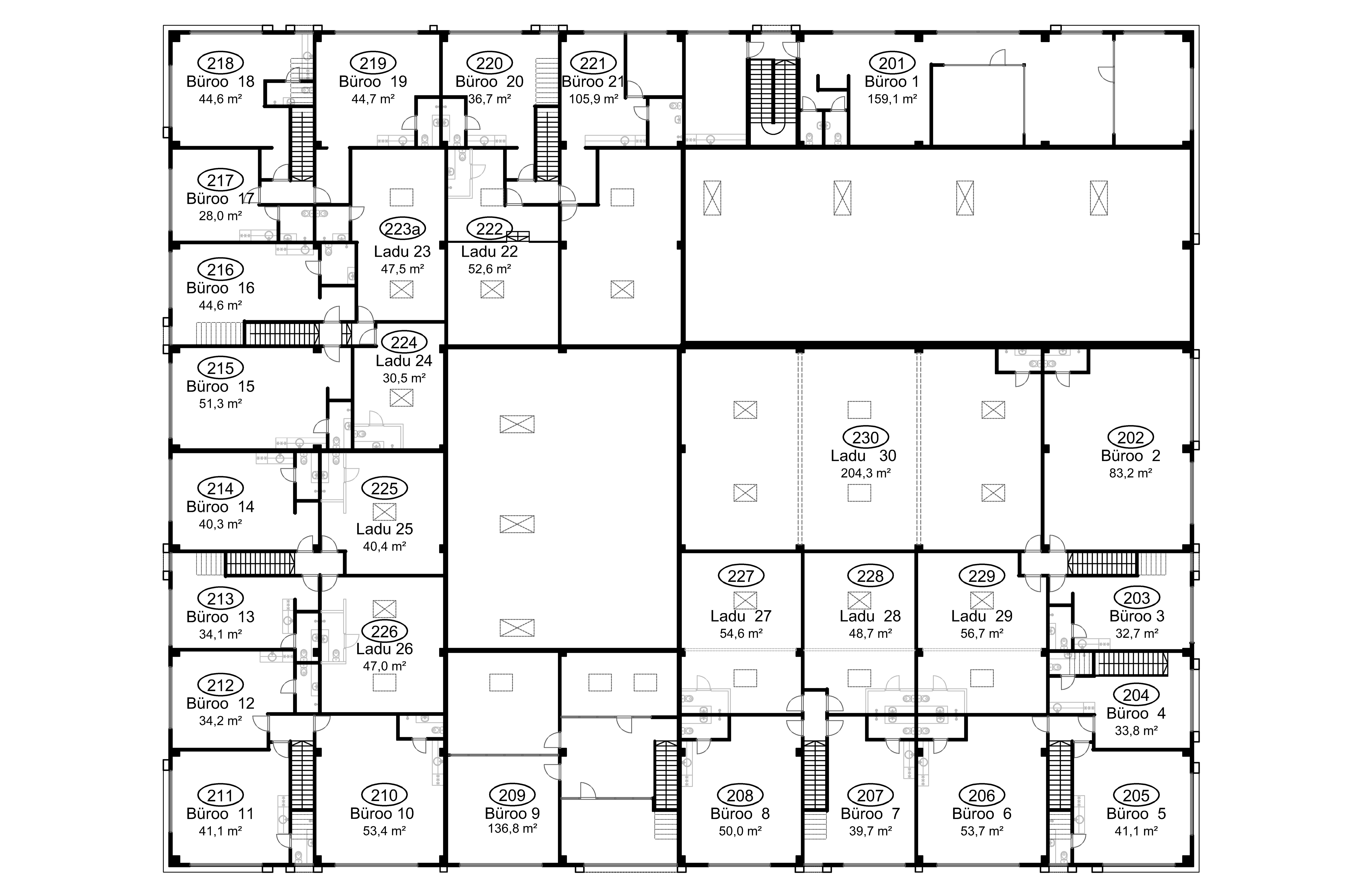
| 201 | 2 | 159.1 | office (H=2.7m) | Reserved | |
| 202 | 2 | 83.2 | office (H=3.65m) | €124,000 | Available |
| 203 | 2 | 32.7 | office (H=2.7m) | €55,000 | Available |
| 204 | 2 | 33.8 | office (H=2.7m) | Reserved | |
| 205 | 2 | 41.1 | office (H=2.7m) | €65,000 | Available |
| 206 | 2 | 53.7 | office (H=2.7m) | Reserved | |
| 207 | 2 | 39.7 | office (H=2.7m) | €63,000 | Available |
| 208 | 2 | 50.0 | office (H=2.7m) | €74,000 | Available |
| 209 | 2 | 136.8 | office (H=2.7m) | €178,000 | Available |
| 210 | 2 | 53.4 | office (H=2.7m) | €79,000 | Available |
| 211 | 2 | 41.1 | office (H=2.7m) | Reserved | |
| 212 | 2 | 34.2 | office (H=2.7m) | €57,000 | Available |
| 213 | 2 | 34.1 | office (H=2.7m) | €57,000 | Available |
| 214 | 2 | 40.3 | office (H=2.7m) | €65,000 | Available |
| 215 | 2 | 51.3 | office (H=2.7m) | €78,000 | Available |
| 216 | 2 | 44.6 | office (H=2.7m) | €71,000 | Available |
| 217 | 2 | 28.0 | office (H=2.7m) | €49,000 | Available |
| 218 | 2 | 44.6 | office (H=2.7m) | €71,000 | Available |
| 219 | 2 | 44.7 | office (H=2.7m) | €71,000 | Available |
| 220 | 2 | 36.7 | office (H=2.7m) | Reserved | |
| 221 | 2 | 105.9 | office (H=2.7m) | Reserved | |
| 222 | 2 | 52.6 | warehouse/production/studio/other (H=2.7m) | €72,000 | Available |
| 223 | 2 | 47.5 | warehouse/production/studio/other (H=2.7m) | €66,000 | Available |
| 224 | 2 | 30.5 | warehouse/production/studio/other (H=2.7m) | €49,000 | Available |
| 225 | 2 | 40.4 | warehouse/production/studio/other (H=2.7m) | €59,000 | Available |
| 226 | 2 | 47.0 | warehouse/production/studio/other (H=2.7m) | €65,000 | Available |
| 227 | 2 | 54.6 | warehouse/production/studio/other (H=2.7m) | €75,000 | Available |
| 228 | 2 | 48.7 | warehouse/production/studio/other (H=2.7m) | €67,000 | Available |
| 229 | 2 | 56.7 | warehouse/production/studio/other (H=2.7m) | €77,000 | Available |
| 230 | 2 | 204.3 | warehouse/production/studio/other (H=3.2m/4.4m) | €249,000 | Available |
| * VAT will be added to the price | |||||